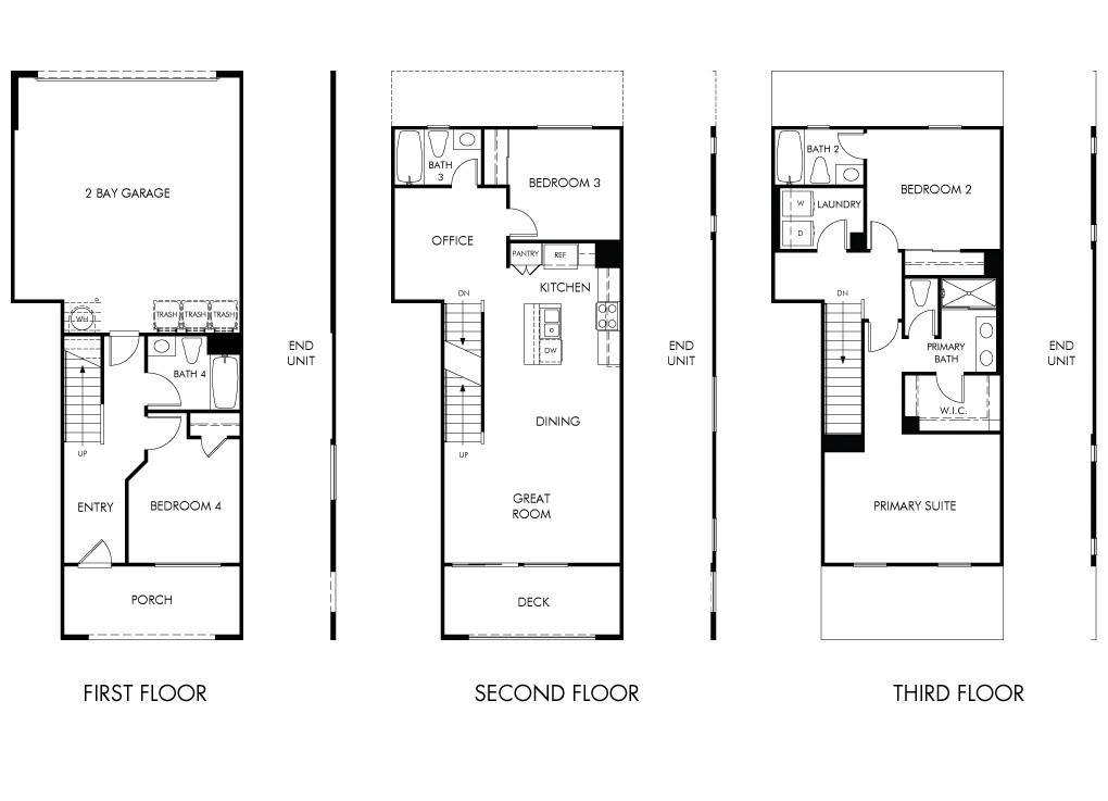
Brand new, energy-efficient home available by May 2026! Cozy interior design package, solar purchase included. The first-floor bed with full bath provides comfort for visiting guests or a home office. The open-concept living space is ideal for entertaining, featuring a chef-inspired kitchen with large island, dedicated dining space, and a powder bath for guests. Introducing Pacifica, a new Oceanside, CA community of energy-efficient townhomes priced from the high $600,000s. Each home features Whirlpool® appliances, whole-home blinds, and 60-day quick-close timelines. Enjoy designer-curated finishes, smart home technology, and amenities including pickleball courts, dog park, playgrounds, and BBQ areas—all designed for a vibrant coastal lifestyle. Each of our homes is built with innovative, energy-efficient features designed to help you enjoy more savings, better health, real comfort and peace of mind.
Compare listings
Compare