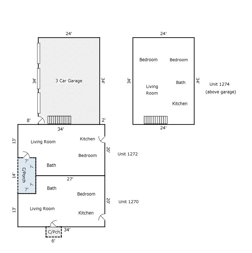
Great investment opportunity! If you’re looking for a clean, income-producing property with upside⦠this is it. Well-maintained triplex offers a unit mix of two 1-bedroom, 1-bath units and one 2-bedroom, 1-bath unit. There are three one car garages plus an additional storage closet. Roof was replaced about 2 years ago. Laundry hookups in one of the garages, extra on-site parking available. This solid addition has built-in growth potential to convert garages into a 4th unit. Ideal for both seasoned investors and owner-users looking to offset their mortgage with rental income. Drive by only, do not disturb occupants or attempt to walk the property.
Compare listings
Compare